Leave a Message

Thank you for your message. We will be in touch with you shortly.

The Excitement of New Construction Homes: Building Your Dream Home from the Ground Up

The Excitement of New Construction Homes: Building Your Dream Home from the Ground Up

When purchasing a luxury home, new construction homes offer a unique opportunity to create a space that is entirely your own. For discerning buyers, the benefits of new construction extend far beyond the aesthetic. Modern materials, personalized design, and cutting-edge features make a new build a smart and exciting choice for those ready to embrace luxury and convenience.

Susan Gregory is one of Tennessee’s top real estate agents with extensive experience in the Nashville area’s new construction market. Her relationships with top local homebuilders and luxury communities lend her insight into the benefits of new construction homes. Take a peek inside!

New Construction Homes Are Your Vision, Realized

width=

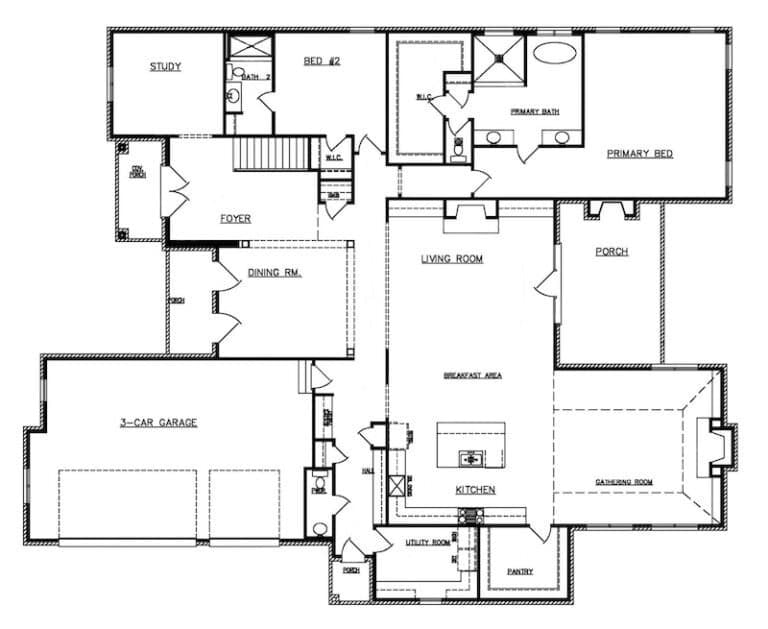
Caption: 1683 Geralds Drive is the Award Winning Winchester Plan by Turnberry Homes – Now Building in the Reserve at Raintree Forest in Brentwood.

One of the most thrilling aspects of a new construction home is the ability to personalize every detail. From choosing layouts and finishes to selecting custom touches that reflect your taste, new construction empowers you to design a home that suits your lifestyle perfectly. No more compromises on outdated features or layouts—you’ll move into a space that feels like it was built just for you. For luxury buyers, this means high-end finishes, bespoke details, and the ability to create a home that’s as unique as your vision.

New Construction Homes Provide a Modern Edge

width=

Caption: Photo representative of a finished Winchester floor plan model home by Turnberry Homes. 1683 Geralds Drive is under construction. 

New construction homes are designed with today’s lifestyle in mind. Smart home technology, energy-efficient materials, and open-concept layouts ensure your home isn’t just beautiful—it’s functional and forward-thinking. Imagine enjoying seamless climate control, integrated security systems, or even EV-ready garages, all while reducing your environmental footprint with energy-saving appliances and superior insulation. These state-of-the-art features aren’t just trendy; they’re essential for modern living and can elevate your everyday experience.

Move-In Ready and Maintenance-Free

width=

Caption: Photo representative of a finished Winchester floor plan model home by Turnberry Homes. 1683 Geralds Drive is under construction. 

Unlike existing homes that might come with hidden repairs or renovation projects, a new construction home allows you to start fresh. Everything is brand new, from the roof to the appliances, meaning you won’t spend your weekends fixing issues or worrying about unexpected costs. Many new construction homes also come with warranties, providing peace of mind for years to come. This focus on reliability and low maintenance ensures you can spend more time enjoying your dream home and less time managing it.

Make the Move to A New Construction Home!

width=

Building a new construction home is more than an investment—it’s an adventure. Every step of the journey is tailored to your needs, from customizing your design to experiencing the ease of modern features. With options available in some of the most desirable areas of Middle Tennessee, you’ll find that a new construction home provides the ultimate in luxury, convenience, and peace of mind. 

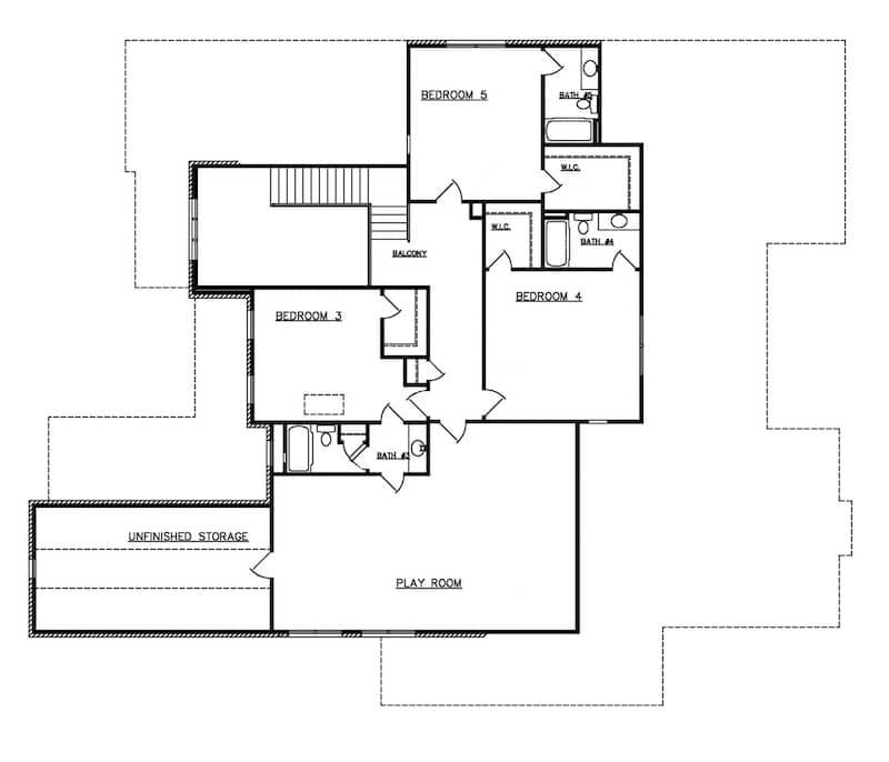
If you’re ready to explore new construction homes, 1683 Geralds Drive is the award-winning Winchester plan from top area homebuilder Turnberry Homes. Located on a spacious homesite in the Reserve at Raintree Forest in Brentwood, TN, this new construction is designed with upscale living in mind. Explore the gallery of a finished model home to see examples of the homebuilder’s work and to visualize how 1683 Geralds Drive could be your dream home. 

width=

Work with Susan Gregory from Onward Real Estate for The Best New Construction Homes!

Let Susan Gregory guide you through the process of finding the perfect new construction home in Brentwood, College Grove, and beyond. Contact her today to start building your future in a home that’s truly yours! Call Susan today at (615) 207-5600 and explore featured properties online.

OUR TEAM KNOWS NASHVILLE

Whether buying or selling, Susan is here to guide you through the entire process of finding homes around Nashville TN. No matter which market you’re in, you need the experience and expertise of the premier real estate agent in Nashville.

Follow Us on Instagram